Detalle: UNADE-DAF-CM-2025-0011

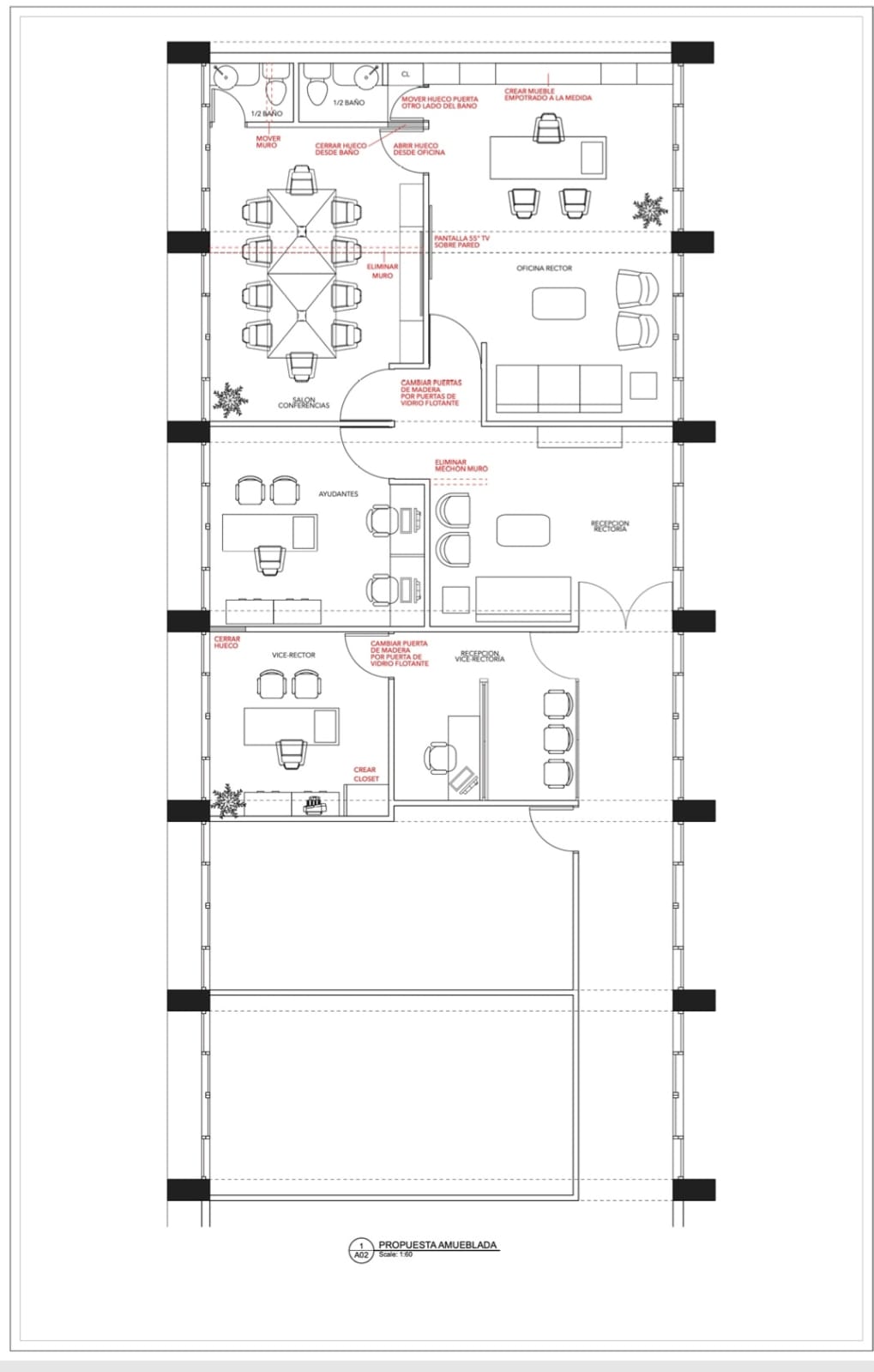
SERVICIO DE READECUACIÓN DE ESPACIOS FÍSICOS EN LAS OFICINAS DE LA VICE RECTORÍA ADMINISTRATIVA, AYUDANTE, SALA DE ESPERA Y PASILLO DE LA UNIVERSIDAD NACIONAL PARA LA DEFENSA (UNADE) GENERAL JUAN PABL (UNADE-DAF-CM-2025-0011)

Unidad de compra: Universidad Nacional para la Defensa (DO-UC-546)

Modalidad: Compras Menores

Objeto/Subobjeto: SERVICIO DE READECUACIÓN DE ESPACIOS FÍSICOS EN LAS OFICINAS DE LA VICE RECTORÍA ADMINISTRATIVA, AYUDANTE, SALA DE ESPERA Y PASILLO DE LA UNIVERSIDAD NACIONAL PARA LA DEFENSA (UNADE) GENERAL JUAN PABL /

Monto estimado: 1,564,810.60 DOP

Estado: complete

Publicación: 25-06-2025 14:01

Fin recepción ofertas: 30-06-2025 14:00

Enlace oficial:


Descripción / Observaciones:

SERVICIO DE READECUACIÓN DE ESPACIOS FÍSICOS EN LAS OFICINAS DE LA VICE RECTORÍA ADMINISTRATIVA, AYUDANTE, SALA DE ESPERA Y PASILLO DE LA UNIVERSIDAD NACIONAL PARA LA DEFENSA (UNADE) GENERAL JUAN PABLO DUARTE Y DIEZ.

Artículos asociados
# Subclase UNSPSC Descripción usuario Cantidad Precio unitario estimado Precio total estimado
1 72101507 SERVICIO DE READECUACIÓN DE ESPACIOS FÍSICOS EN LAS OFICINAS DE LA VICE RECTORÍA ADMINISTRATIVA, AYUDANTE, SALA DE ESPERA Y PASILLO DE LA UNIVERSIDAD NACIONAL PARA LA DEFENSA (UNADE) GENERAL JUAN PABLO DUARTE Y DIEZ. 1 1,564,810.60 1,564,810.60

Documentos disponibles

Ofertas recibidas
Razón social RPE Valor oferta Tipo oferta Fecha entrega oferta Adjudicación (detalle) Contratos adjudicados
Construct Solutions Group Multiservices (CSGM), SRL DO-RPE-34258 1,836,506.00 DOP 01-07-2025 15:31
Award 1: ID: DO1.AWD.1787330 | Suppliers: Construct Solutions Group Multiservices (CSGM), SRL | Monto: 1,556,360.60
contratado: 1,836,506.00 DOP
02-09-2025 17:00
active

Participar en este proceso
# Descripción Cant. UM Precio unitario (DOP) ITBIS % Impuesto Precio total estimado unitario final subtotales total unitario Especificación técnica
1 SERVICIO DE READECUACIÓN DE ESPACIOS FÍSICOS EN LAS OFICINAS DE LA VICE RECTORÍA ADMINISTRATIVA, AYUDANTE, SALA DE ESPERA Y PASILLO DE LA UNIVERSIDAD NACIONAL PARA LA DEFENSA (UNADE) GENERAL JUAN PABLO DUARTE Y DIEZ. 1
%
0.00 1,564,810.60 0.00 0.00 0.00
Total (sin ITBIS): 0.00
Total ITBIS: 0.00
Total general: 0.00

Total en letras: CERO PESOS CON 00/100
Documentos a indexar (menú)
IncluirDocumentoOrden
SNCCF034 (SNCCF034.docx)
Sin fecha de vencimiento
SNCCF042 (SNCCF042.docx)
Sin fecha de vencimiento
TSS (certificacion_tss.docx)
Venció el 04/03/2026
RPE (RPE_registro_proveedores_del_estado.docx)
Sin fecha de vencimiento
DGII (certificacion_dgii.docx)
Venció el 05/03/2026
CERTIFICACION MIPYMES (certificacion_mipymes.docx)
Sin fecha de vencimiento
REGISTRO MERCANTIL (registro_mercantil.docx)
Sin fecha de vencimiento
ESTADOS FINANCIEROS (estados_financieros.docx)
Sin fecha de vencimiento
ESTATUTOS SOCIALES (estatutos_sociales.docx)
Sin fecha de vencimiento
DECLARACION JURADA (RPE-F002_declaracion_jurada.docx)
Sin fecha de vencimiento
NOMINA DE ACCIONISTAS (nomina_de_accionistas.docx)
Sin fecha de vencimiento
ACTA ASAMBLEA (acta_asamblea_general.docx)
Sin fecha de vencimiento
ACEPTACION DE CONDICIONES (aceptacion_de_condiciones.docx)
Sin fecha de vencimiento
CARTA DE COMPROMISO Y ENTREGA (carta_compromiso_tiempo_de_entrega.docx)
Sin fecha de vencimiento
CEDULA REPRESENTANTE (cedula_representante_legal.docx)
Sin fecha de vencimiento
COMPROMISO ETICO (compromiso_etico_proveedores_del_estado.docx)
Sin fecha de vencimiento
CONDICIONES DE PAGO (condiciones_de_pago.docx)
Sin fecha de vencimiento
DEBIDA DILIGENCIA (SNCC-PROV-F-040_debida_diligencia.docx)
Sin fecha de vencimiento
DISPONIBILIDAD EN INVENTARIO (disponibilidad_en_inventario.docx)
Sin fecha de vencimiento
VALIDEZ OFERTA (validez_de_la_oferta.docx)
Sin fecha de vencimiento
GARANTIA DE BIENES (garantia_de_bienes.docx)
Sin fecha de vencimiento
PLAN DE ENTREGA (plan_de_entrega.docx)
Sin fecha de vencimiento
REFERENCIAS BANCARIAS (referencias_bancarias.docx)
Sin fecha de vencimiento
REFERENCIAS COMERCIALES (referencias_comerciales.docx)
Sin fecha de vencimiento
REFERENCIA TECNICA (referencia_tecnica_productos.docx)
Sin fecha de vencimiento
← Volver